忙しいときほど全然違うどうでもいいことをしたくなるのは人の性。何故かダンボールで本棚を作ろうと思い立ちますた(・∀・)
現在、本棚には若干の余裕があるものの本棚はいくらあっても多いことはないのでれっつらごー!であります。
何故可動式なのかというと・・・趣味!w
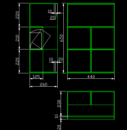
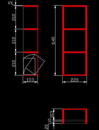
置けるスペースと文庫本の大きさを考えて、横440mm×奥行き260mmに決定。高さは文庫本の大きさは出版社によって少しの違いはあるものの大体縦150mm、横105mmで対角線が約183mmになるので、取り出しやすいように各段の高さは200mm以上とする。そこから本棚置くスペースと構造の問題を考えて3段の本棚に決定。
あとは
・本体(動かない方)は1段目2段目には中板を入れる。(入れない本の重さで間違いなく崩壊する)
・稼動用のレールは動かす時に前の方を持つ事を考えてなるべく前面に。
・ノーマルなダンボール厚さは約5mm
などの点を踏まえて図面を起こすと


(緑の方が本体で赤い方が可動部。中の白いのは文庫本。右上が正面、右下が平面、左上が側面)
パーツに分けると下図のようになる。


見難くてスマソm(_ _)m
点線部分は紙一枚だけ残すところ 寸法が入ってない場合は5mm。詳しくは実践編で
レールはぴったりだと動かしづらいので若干細め
む、パーツ数がかなり多いな(^^;
それにスーパーなどにはそんなに大きなダンボールがないであろうことを考えると継ぎはぎにしないといけないパーツがいくつもありそう。
構造上のダンボールの使い方の注意点
当然のことだがダンボールには中に波状の紙(フルートというらしい)の向きによって力(本の重さ)に対する強さが全然違う。本棚の場合は上から本の重さがかかるのでフルートの向きは縦向き(地面に対して垂直)であればダンボールが折れにくい。
よって本体の中板と可動部の側板(内側)は縦向きで継ぎはぎ不可は必須条件。他に縦に使う材料(背板、側板)は縦向き、横に使う材料(天板、底板)は長手方向に水平であることが好ましい。
以上の点を踏まえ実践編に続く。
